The Independent Variable - Matt Haugland


Monday, July 06, 2009

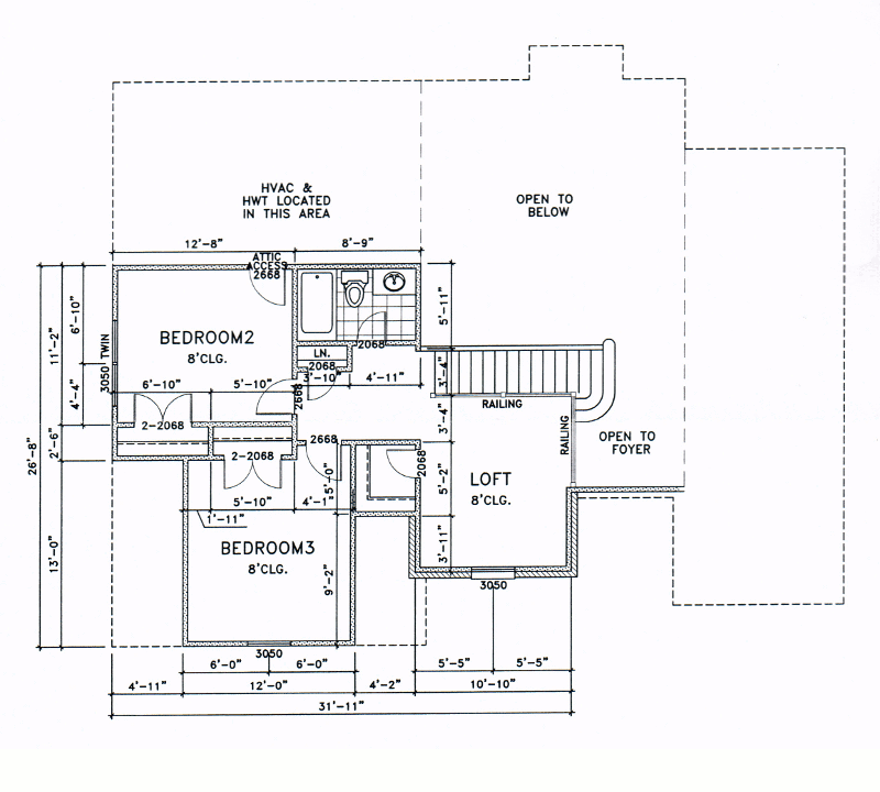
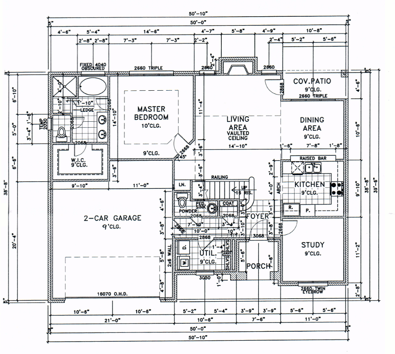
Floor Plan

The floor plan for the new house is now finished! It's 3br 2.5ba plus a loft and a study. It was designed to maximize the views, with 4 upstairs windows overlooking Oklahoma City and any storm in northern or western Oklahoma.



(click to enlarge)

Construction should begin in a couple weeks and it should be finished early next year. I won't say the price, just that it's unbelievably low -- roughly the same payments as a 1br apartment back in San Jose. I love Oklahoma!

1 Comments:

At 7:35 PM, Anonymous Jason said...

That is a super nice house. I am proud and jelous of you;)

 

Post a Comment